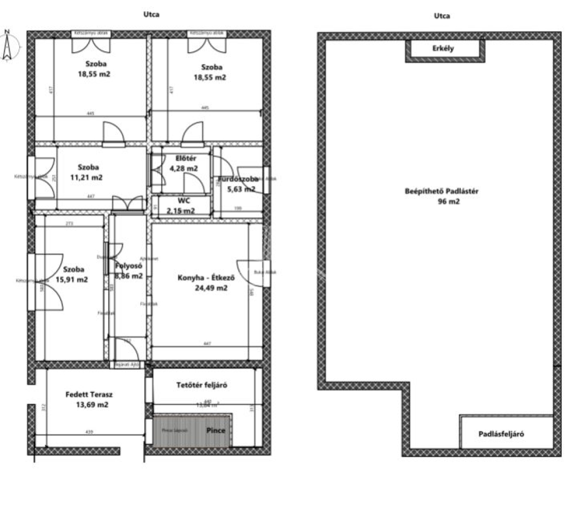
| 122 m2Alapterület | 4 Szoba |
| 75 900 000 Ft Ár | |
| 394961Azonosító | |
| További adatok | |
680 m2 Telek
Udvari Kilátás
Jó állapotú Állapot
Tégla Szerkezet
14 m2 Erkély/terasz
Gáz (cirkó) Fűtés
Összkomfort Komfort
Saját garázs Parkolás
Kiváló Tömegközlekedés
Amerikai konyhás
Van Kertkapcsolat
1975 Építés éve