Eladó Lakás (téglaépítésű) Budapest VII. kerület - Almássy tér

70 m2Alapterület 2 + 1 Szoba
89 900 000 Ft Ár
395226Azonosító
További adatok

Utcai Kilátás

Jó állapotú Állapot

Tégla Szerkezet

Gáz (cirkó) Fűtés

Összkomfort Komfort

Utcán, közterületen Parkolás

Emelet 1

Nincs Lift

Kiváló Tömegközlekedés

Nem Amerikai konyhás

Nincs Kertkapcsolat

1934 Építés éve

Közös költség 29 000 Ft

Keleti Tájolás

Hitelkalkuláció – a részletekért kattintson valamelyik bank logójára!

ELADÓ LAKÁS BUDAPEST VII. KERÜLETÉBEN, ERZSÉBETVÁROSBAN, AZ ALMÁSSY TÉR KÖZELÉBEN.

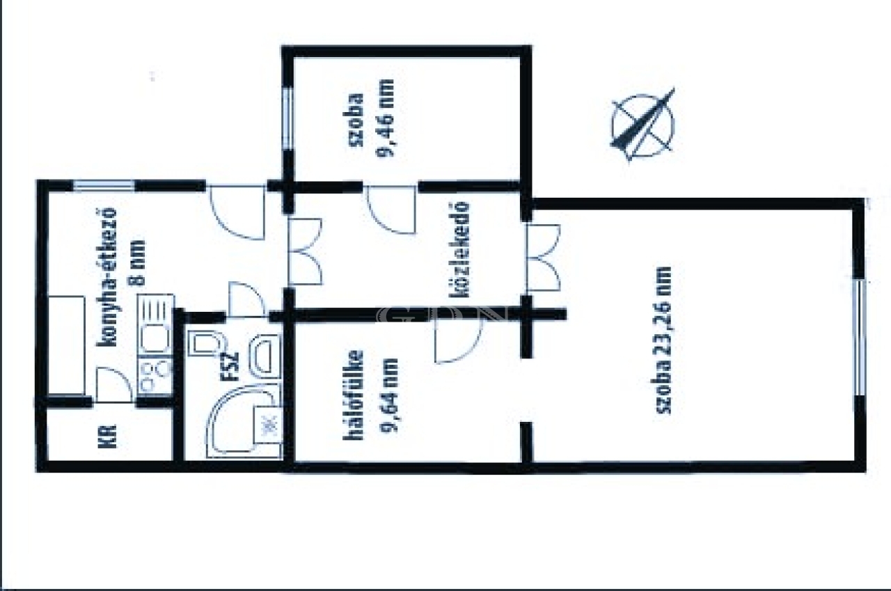
70 nm, 2 szoba+hall, (3 szobássá alakítható) 89.9 MFt.

Dér Krisztina
+36703603098

AZ INGATLAN ALKALMAS A 3%-OS OTTHON START HITELRE!

A környék az elmúlt időszakban megújult, a tér és a kapcsolódó sétálóutca felújítása megtörtént. A társasház a Wesselényi utcából közelíthető meg. A lakás nappalija az Almássy tér Barcsay utca felőli, csendesebb oldalára néz, további ablakai belső udvarra nyílnak.

A 70 nm alapterületű 2 szoba + hallos ingatlan jelenlegi elrendezése: nappali, abból nyíló hálófülke, külön bejáratú hálószoba, étkező-konyha, valamint fürdőszoba sarokkáddal. Az alaprajz lehetőséget biztosít átalakításra: a hall átszervezésével amerikai konyhás nappali, valamint két külön nyíló, ablakos hálószoba is kialakítható.

A lakásban a nyílászárók cseréje és a fűtés korszerűsítése megtörtént. A fűtést és a melegvíz-ellátást Baxi Ecofour kombi cirkó kazán biztosítja. A havi fenntartási költség – közös költséggel együtt – körülbelül 50 000 Ft, amely tartalmazza a felújítási alap hozzájárulását is.

A társasház homlokzata felújított, pénzügyi helyzete rendezett. A lakáshoz tartozik egy zárható pincerekesz, továbbá a társasházban közös, zárható kerékpártároló is rendelkezésre áll.

A 4–6-os villamos megállója rövid sétával elérhető. A közelben több felsőoktatási intézmény, vendéglátóhely és közlekedési csomópont található (Oktogon, Blaha Lujza tér, Keleti pályaudvar).
Simon Barbara

Simon Barbara

Hívjon bizalommal

+36-70-704-Mutasd!

További hirdetéseim

Ingatlaniroda
GDN Ingatlanhálózat - Érdi Ingatlaniroda

Küldjön üzenetet

Visszahívást kérek

Hasonló ingatlanok