Eladó Telek Csörög - Kolozsvári utca

128 m2Alapterület 5 Szoba
89 000 000 Ft Ár
394297Azonosító
További adatok

541 m2 Telek

Kertre néző Kilátás

Új Állapot

Tégla Szerkezet

Hőszivattyú Fűtés

Összkomfort Komfort

Saját garázs Parkolás

Tömegközlekedés

Amerikai konyhás

Van Kertkapcsolat

2026 Építés éve

Délnyugati Tájolás

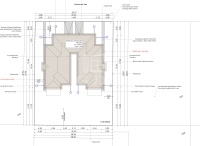
Csendes, jól megközelíthető környezetben Csörögön a Kolozsvári utca 12. szám, 1082 m²-es telket kínáljuk eladásra engedélyeztetett ikerház tervekkel.

A terv minkét ikerfél esetében 128 m2-es, 4 külön hálószobával, amerikai konyhás nappalival, illetve két fürdőszobával és egy 19,8 m²-es garázzsal rendelkezik.

Az ingatlan LKE-2 besorolású:
-30% beépíthetőség
-minimum 50% zöldfelület
-oldalhatáros beépítés.


INGYENES hitel tanácsadás, CSOK Plusz- Otthon Start ügyintézés!
BANKFÜGGETLEN hitelcentrumunk az összes elérhető bank és hitelintézet ajánlatát versenyezteti az Ön kedvéért, ráadásul DÍJMENTESEN.

- Egyedi, bankfiókban nem elérhető kamat- és díjkedvezmények
- Hitelképesség vizsgálat
- Idő, energia és pénz megtakarítás
- Teljes hivatali ügyintézés

Amennyiben hirdetésem felkeltette az érdeklődését vagy egyéb információra van szüksége hívjon bizalommal!
Dankóné Cserős Éva

Dankóné Cserős Éva

Hívjon bizalommal

+36-20-366-Mutasd!

További hirdetéseim

Ingatlaniroda
GDN Ingatlanhálózat - Érdi Ingatlaniroda

Küldjön üzenetet

Visszahívást kérek

Hasonló ingatlanok