Eladó Ikerház Dabas - Kormányablak vonzásában!

84 m2Alapterület 4 Szoba
79 990 000 Ft Ár
393982Azonosító
További adatok

300 m2 Telek

Kertre néző Kilátás

Építés alatt Állapot

Ytong Szerkezet

6 m2 Erkély/terasz

Hőszivattyú Fűtés

Összkomfort Komfort

Saját beálló Parkolás

Tömegközlekedés

Amerikai konyhás

Van Kertkapcsolat

2026 Építés éve

Délkeleti Tájolás

Hitelkalkuláció – a részletekért kattintson valamelyik bank logójára!

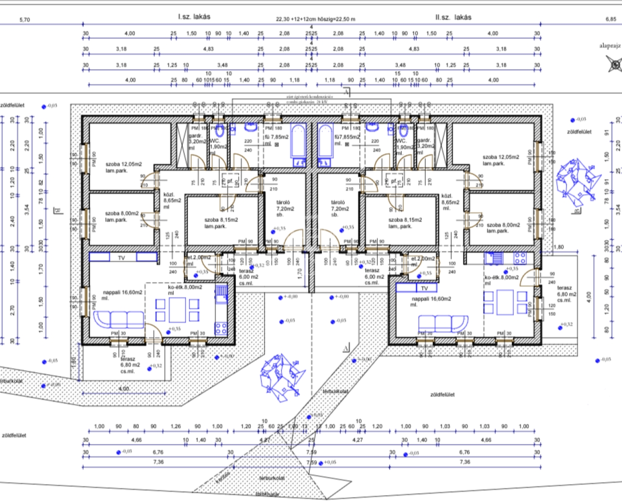
Dabason 300 nm-es intim telken, újonnan épülő nettó 84 nm-es hasznos lakótérrel rendelkező, nappali+3 hálós hátsó ikerház eladó.

Az ingatlan 30-as Ytong falazóelemből épült, fa födémmel.
A tető héjazata antracit betoncserép, a homlokzatok 10cm Austrotherm EPS, a padló 10cm Austrotherm AT-N100-as, a vízszintes födém 25cm Ásványgyapot szigeteléssel lesz ellátva.

A minimális energiaigényt a megfelelő szigetelésen kívül a megújuló energiát használó gépészet is biztosítja, a fűtést és a meleg víz ellátást hőszivattyús rendszer fogja ellátni, padlófűtéssel.


A műszaki tartalom választható az alábbi költségkereten belül:

-hidegburkolat: 6000.- Ft./m2-ig.
-meleg burkolat: 6000.- Ft./m2-ig
-csaptelepek:15.000.- Ft./db
-kád vagy zuhany: 40.000.- Ft.
-beltéri ajtók:35.000.- Ft./db


Elektromos kiépítés:
-Konnektorok szobákban: 3 db
-Konnektorok nappaliban: 4 db + internet és kábel tv kiállás
-Konnektorok konyhában: 6 db
-Világítás helyiségenként:1-1 db
-Kábeltévé: Előkészítés


Magasabb árú tatalom is választható a különbség finanszírozásával, várható átadás megállapodást követően fél éven belül.

INGYENES hitel tanácsadás, CSOK Plusz Otthonstart ügyintézés!
BANKFÜGGETLEN hitelcentrumunk az összes elérhető bank és hitelintézet ajánlatát versenyezteti az Ön kedvéért, ráadásul DÍJMENTESEN.


Amennyiben hirdetésem felkeltette az érdeklődését vagy egyéb információra van szüksége hívjon bizalommal!
LL
Simon Barbara

Simon Barbara

Hívjon bizalommal

+36-70-704-Mutasd!

További hirdetéseim

Ingatlaniroda
GDN Ingatlanhálózat - Érdi Ingatlaniroda

Küldjön üzenetet

Visszahívást kérek

Hasonló ingatlanok