Eladó Lakás (téglaépítésű) Budapest VI. kerület - Dessewffy utca

56 m2Alapterület 3 Szoba
92 000 000 Ft Ár
394096Azonosító
További adatok

Utcai Kilátás

Felújított Állapot

Tégla Szerkezet

Gáz (cirkó) Fűtés

Összkomfort Komfort

Utcán, közterületen Parkolás

Emelet Földszint

Van Lift

Kiváló Tömegközlekedés

Amerikai konyhás

Nincs Kertkapcsolat

1940 Építés éve

Hitelkalkuláció – a részletekért kattintson valamelyik bank logójára!

Eladó 3 szobás lakás a VI. kerületben, Dessewffy utcában!

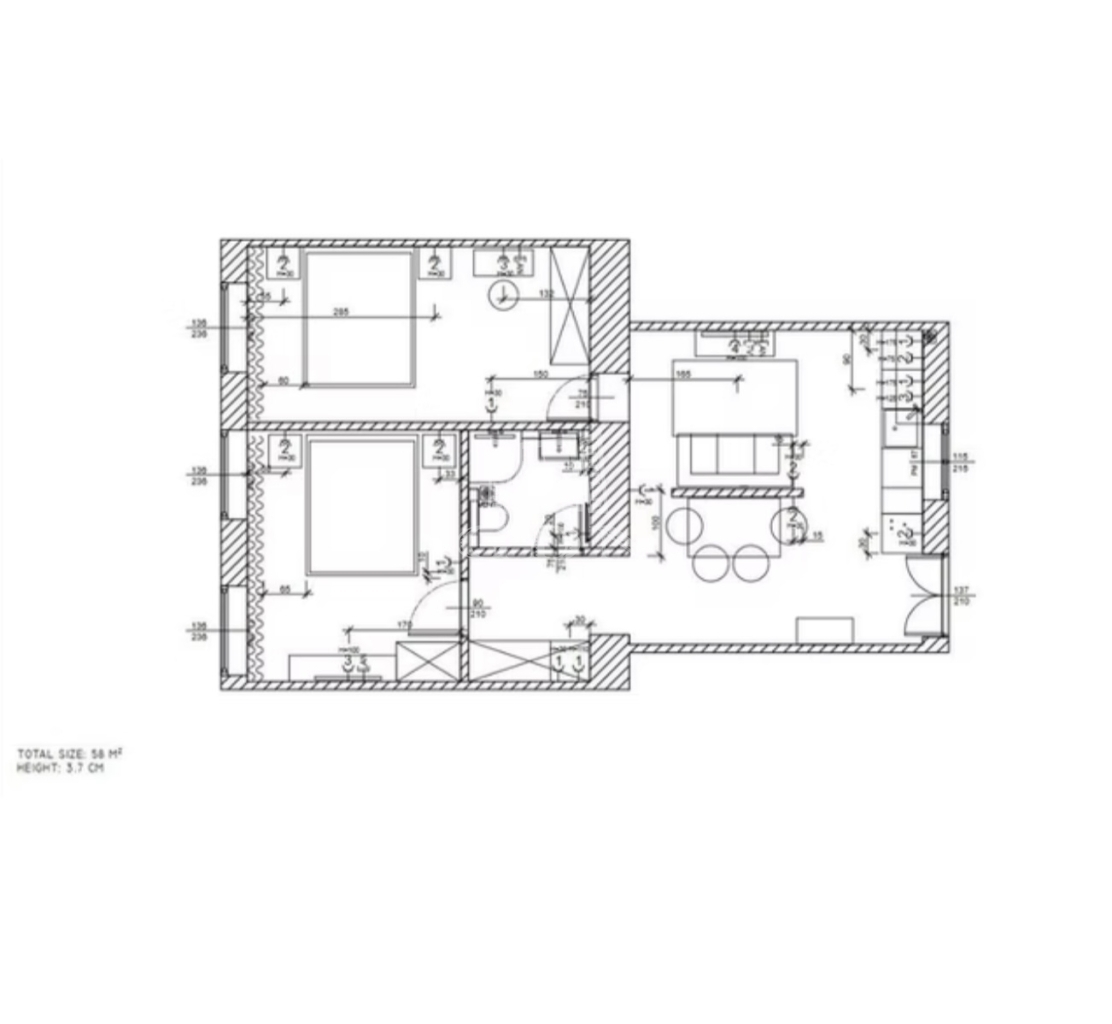
Eladó egy 3 szobás, felújított lakás Budapest belvárosában, a Dessewffy utcában, egy rendezett ház földszintjén. A lakás különleges hangulatot áraszt, a stílusos téglafalak a New York-i loftlakásokra emlékeztetnek. A szobák külön nyílnak, mindkét ablak az utcára néz, így világos és napfényes.

A tágas amerikai konyhás nappali ideális a mindennapi élethez és a szórakozáshoz is. A fűtést gázkazán biztosítja, így a lakás költségei könnyen szabályozhatóak. A lakás tulajdoni lapon 55 m², de a valóságban 58 m², így bőven elegendő helyet biztosít a kényelmes lakhatáshoz.

További jellemzők:
-Külön nyíló szobák
-Tégla falak, loft hangulat
-Amerikai konyhás nappali
-Fűtés: Gázkazán
-Valódi alapterület: 58 m²

A lakás jelenleg hosszú távra van kiadva 950 euróért, így a befektetők azonnali hozamra számíthatnak.

A lakás kiváló lehetőség pároknak, kis családoknak vagy akár egyedülállóknak is. Ha bármilyen kérdése van, vagy szeretné megtekinteni, keressen minket bizalommal!
Simon Barbara

Simon Barbara

Hívjon bizalommal

+36-70-704-Mutasd!

További hirdetéseim

Ingatlaniroda
GDN Ingatlanhálózat - Érdi Ingatlaniroda

Küldjön üzenetet

Visszahívást kérek

Hasonló ingatlanok