Eladó Lakás (téglaépítésű) Budapest XIII. kerület - Pozsonyi út

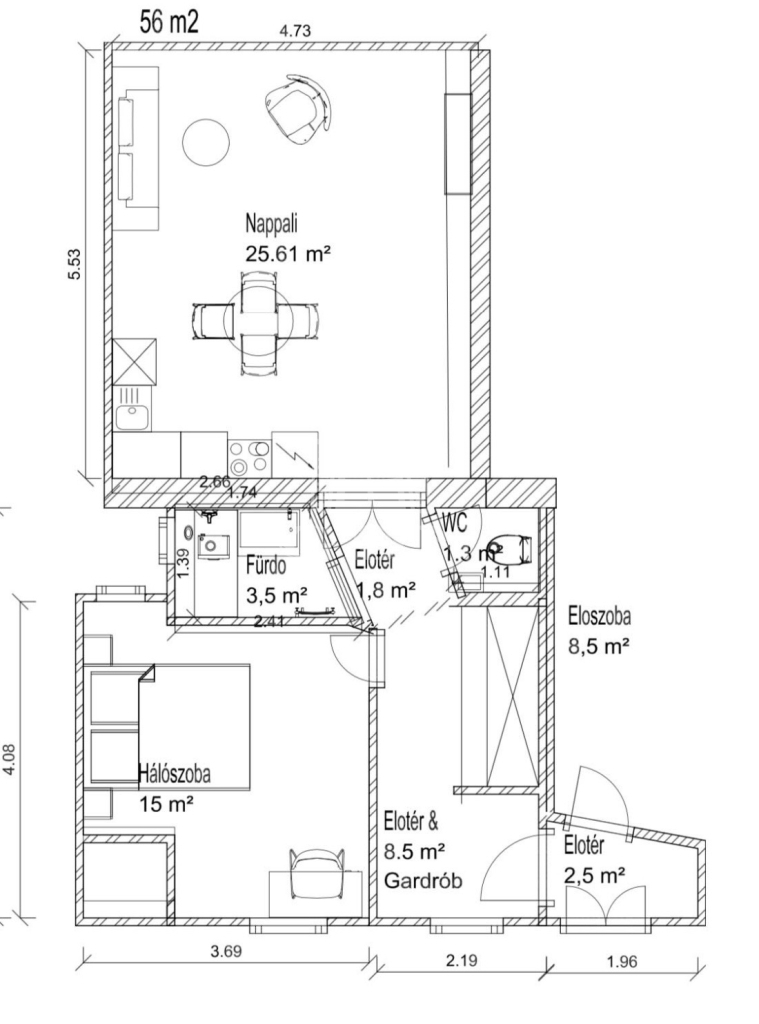
56 m2Alapterület 2 + 1 Szoba
134 000 000 Ft Ár
393507Azonosító
További adatok

Utcai Kilátás

Felújított Állapot

Tégla Szerkezet

Elektromos Fűtés

Luxus Komfort

Utcán, közterületen Parkolás

Emelet 4

Van Lift

Kiváló Tömegközlekedés

Amerikai konyhás

Nincs Kertkapcsolat

1958 Építés éve

Közös költség 14 500 Ft

Délkeleti Tájolás

Hitelkalkuláció – a részletekért kattintson valamelyik bank logójára!

Prémium luxuslakás ELADÓ a Pozsonyi úton – Újlipótváros szívében

Budapest egyik legkedveltebb részén, a XIII. kerületben, a közkedvelt Pozsonyi úton kínálunk megvételre egy 56 m²-es, exkluzív, 4. emeleti luxuslakást.

Az ingatlan teljes körű, magas minőségű felújításon esett át, ahol minden részletet a kifinomult ízlés, az elegancia és a maximális kényelem határoz meg.
A tágas nappali, az elegáns hálószoba, a külön walk-in gardrób, valamint a modern, prémium anyagokkal kialakított konyha és fürdőszoba együtt teremtik meg a letisztult luxus atmoszféráját.

A lakás főbb jellemzői
• Teljesen megújult víz-, csatorna- és elektromos hálózat
• Új, korszerű nyílászárók
• Egyedileg gyártott, masszív fa bejárati ajtó
• Külön gardróbszoba
• Légkondicionált helyiségek
• Hangszigetelt falak a maximális komfortért
• Egyedi tervezésű, design konyhabútor teljes gépesítéssel
• Lakberendező által megálmodott, funkcionális térkialakítás
• A felújítás minden lépése dokumentált, prémium anyaghasználattal
• Igény szerint a teljes bútorzat a vételár részét képezheti
• Rendezett társasház két lifttel

A 3,6 méteres belmagasság, a világos terek és a stílusos lakberendezési megoldások igazán különlegessé teszik ezt az otthont. A minőségi burkolatok, az exkluzív világítástechnika és a modern konyhai gépek a legmagasabb igényeket is kielégítik.

A Pozsonyi út pezsgő hangulata és Újlipótváros különleges atmoszférája tökéletes harmóniában találkozik ebben az otthonban.
A lakás néhány perc sétára található a Szent István Parktól és a Duna-parttól, valamint a környék hangulatos kávézóitól és éttermeitől – ideális választás mindazoknak, akik szeretik a városi élet elegáns formáját.

Ez az ingatlan tökéletes választás saját otthonnak vagy értékálló befektetésnek egyaránt.

Azonnal költözhető – ide valóban csak a bőröndjét kell hoznia.
Irányár: 134.000.000 Ft
Simon Barbara

Simon Barbara

Hívjon bizalommal

+36-70-704-Mutasd!

További hirdetéseim

Ingatlaniroda
GDN Ingatlanhálózat - Érdi Ingatlaniroda

Küldjön üzenetet

Visszahívást kérek

Hasonló ingatlanok