Eladó Családi ház Gödöllő - Dessewffy Arisztid utca

148 m2Alapterület 5 + 1 Szoba
134 000 000 Ft Ár
394300Azonosító
További adatok

805 m2 Telek

Kertre néző Kilátás

Felújított Állapot

Tégla Szerkezet

56 m2 Erkély/terasz

Gáz (cirkó) Fűtés

Dupla komfort Komfort

Saját garázs Parkolás

Tömegközlekedés

Nem Amerikai konyhás

Van Kertkapcsolat

1980 Építés éve

Délkeleti Tájolás

Hitelkalkuláció – a részletekért kattintson valamelyik bank logójára!

KÉT GENERÁCIÓ SZÁMÁRA IS TÖKÉLETES, TÁGAS OTTHON GÖDÖLLŐ CSENDES RÉSZÉN, IGÉNYES KIALAKÍTÁSSAL ÉS KIVÁLÓ TÁJOLÁSSAL

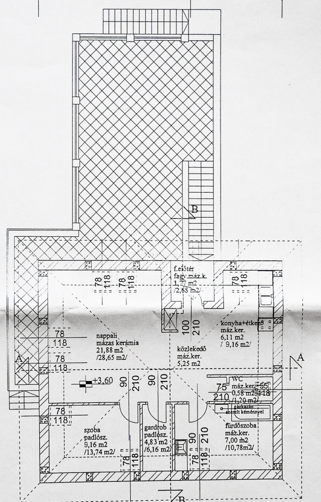
Megvételre kínálok Gödöllő Alvég városrészben, 805 nm-es telken, délkeleti fekvésű, nettó 148 nm-es, bruttó 229 nm-es, felújított, két külön bejáratú lakásból álló családi házat.

A főépület szuterén (48nm) és az alsó lakás (75 nm), 1980-as években épült, beton alapra 30-as tégla falazattal. 2009-ben ráépült beton födémmel és új tetővel egy külön bejáratú 56 nm-es lakás, illetve mellé épült egy 35 nm-es két állásos garázs elektromos garázskapuval, ami fölött 56 nm-es terasz került kialakításra. Ebben az időben kapott az épület körbe 7 cm dryvit szigetelést és új fa thermo nyílászárókat is.

Az ingatlan 2025-ben részben felújításra került, alsó szinten megújult a gépészet (víz, villany, gáz, csatorna, fűtés), kicserélésre kerültek a hideg, illetve melegburkolatok, megújult a fürdőszoba, a konyha pedig teljesen új bútort kapott gépesítéssel.
Kicserélték a teraszburkolatot a felső szint pedig kapott egy tisztasági festést. Két ingatlan teljesen külön mérőórákkal fűtésrendszerrel rendelkezik.

A kétlakásos struktúra nagyszerű lehetőséget teremt azoknak, akik szeretnék a családot egy helyen tudni, de fontos számukra a szeparált élettér; emellett azoknak is vonzó, akik kiadásban gondolkodnak, hiszen teljesen független mérőkkel és külön bejáratokkal rendelkezik.

INFRASTRUKTÚRA

A környék kényelmes mindennapokat biztosít: néhány perces sétával elérhető a buszmegálló, a vasút és a HÉV gyalogosan könnyen megközelíthető. A közelben bevásárlási lehetőségek, óvoda, iskola, egészségügyi szolgáltatások és számos további városi kényelem adott, miközben a környék csendes, rendezett és barátságos lakókörnyezetet kínál.

INGYENES hitel tanácsadás! CSOK+, Otthon Start Lakáshitel Ügy intézés!
BANKFÜGGETLEN hitelcentrumunk minden elérhető bank és hitelintézet ajánlatát versenyezteti az Ön kedvéért, ráadásul DÍJMENTESEN.
Önnek nincs más dolga, mint elbeszélgetni munkatársunkkal, aki a hallott információk alapján versenyre hívja a bankokat, hogy Ön hosszú távon is a legjobb konstrukciót kaphassa. A legjobb ajánlatokból végül Ön választhatja ki a nyertest.
Munkatársaink sokéves szakmai tapasztalattal várják Önt, előre egyeztetve akár a normál munkaidő után is.

Amennyiben hirdetésem felkeltette érdeklődését, várom hívását, akár hétvégén is! V.I.
Simon Barbara

Simon Barbara

Hívjon bizalommal

+36-70-704-Mutasd!

További hirdetéseim

Ingatlaniroda
GDN Ingatlanhálózat - Érdi Ingatlaniroda

Küldjön üzenetet

Visszahívást kérek

Hasonló ingatlanok