Eladó Családi ház Kiskunlacháza - Pest megye

90 m2Alapterület 4 Szoba
87 700 000 Ft Ár
379766Azonosító
További adatok

366 m2 Telek

Kertre néző Kilátás

Új Állapot

Tégla Szerkezet

18 m2 Erkély/terasz

Hőszivattyú Fűtés

Összkomfort Komfort

Saját beálló Parkolás

Közepes Tömegközlekedés

Amerikai konyhás

Van Kertkapcsolat

2025 Építés éve

Hitelkalkuláció – a részletekért kattintson valamelyik bank logójára!

ÁRCSÖKKENÉS 89.900.000--->87.700.000 FT CSAK NOVEMBERBEN!
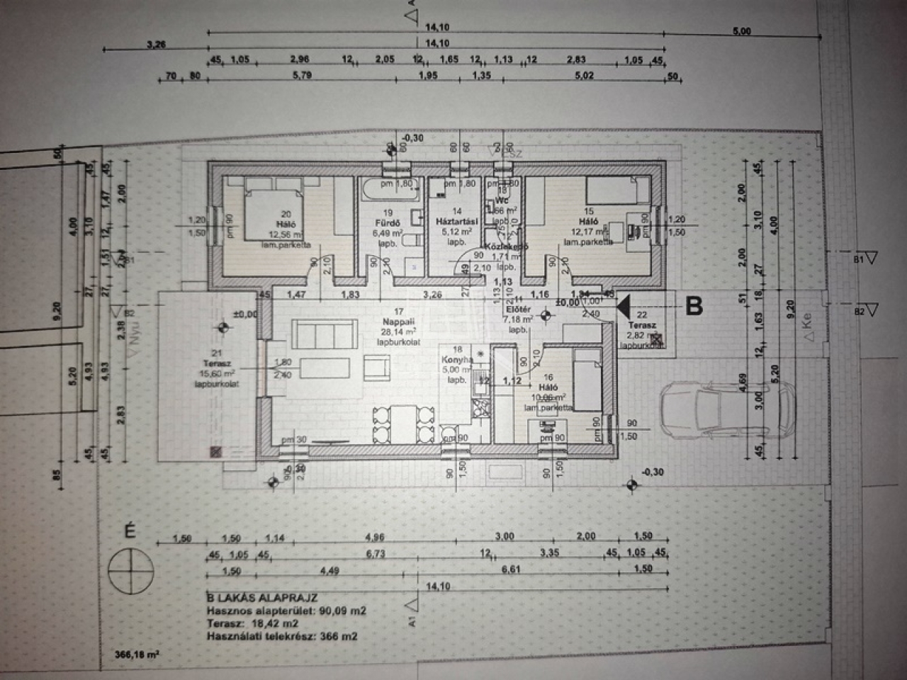
Kiskunlacháza központi részén, kínálom megvételre új-építésű önálló 3 hálószoba, amerikai konyha nappalis családi házat!

A családi ház 366 nm saját telekre épül, 2026 I. negyedévi birtokba-adással.

Műszaki tartalom:
-alap vasalt beton,
-falazat phorothetm síkra csiszolt 30-as N+F tégla
-belső válaszfalak ytong tégla
-3 rétegű, 6 hőlégkamrás műanyag nyílászárók
-nyílászárók redőnyözöttek és szúnyoghálóval szereltek
-tető fedése Leier Granite beton cserép
-fűtés hőszivattyú, padlófűtés hőleadással
-15 cm grafitos Dryvit rendszerű homlokzatszigetelés
-választható hideg és meleg burkolat
-kert parkosítva, kocsibeálló térkövezett
-kapu automatizált
-H-tarifa
Az otthon helyiségei:nappali teraszkapcsolattal 28,14 nm, konyha 5,00 nm, szoba 10,06 nm, szoba 12,17 nm, szoba 12,56 nm, fürdőszoba 6,49 nm, háztartási h 5,12 nm, wc 1,66 nm, közlekedő 1,77 nm, terasz 18,42 nm.

Az ingatlan közelében buszmegálló, 45 perc alatt elérhető Népliget, minden ami a hétköznapi élethez kell néhány perc alatt elérhető, ovi, iskola, bevásárlási lehetőségek...

FINANSZÍROZÁS:
Nálunk mindent egy helyen intézhet:
- hivatalos ingatlanközvetítés;
- szakszerű jogi képviselet;
- profi CSOK-PLUSZ, és hitelügyintézés: 16 Bank, több mint 100 konstrukció;

VÁROM MEGTISZTELŐ HÍVÁSÁT!

A részletes adatvédelmi tájékoztató folyamatosan elérhető a gdn-ingatlan adatvédelmi oldalon.
Simon Barbara

Simon Barbara

Hívjon bizalommal

+36-70-704-Mutasd!

További hirdetéseim

Ingatlaniroda
GDN Ingatlanhálózat - Érdi Ingatlaniroda

Küldjön üzenetet

Visszahívást kérek

Hasonló ingatlanok