Eladó Családi ház Budapest III. kerület - Tamás utca

236 m2Alapterület 5 Szoba
344 000 000 Ft Ár
360905Azonosító
További adatok

553 m2 Telek

Kertre néző Kilátás

Felújított Állapot

Tégla Szerkezet

30 m2 Erkély/terasz

Gáz (cirkó) Fűtés

Luxus Komfort

Saját garázs Parkolás

Tömegközlekedés

Amerikai konyhás

Van Kertkapcsolat

2010 Építés éve

Délkeleti Tájolás

Hitelkalkuláció – a részletekért kattintson valamelyik bank logójára!

Ide csak a bőröndöt kell behúzni!!!

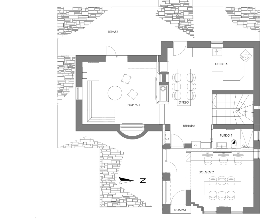
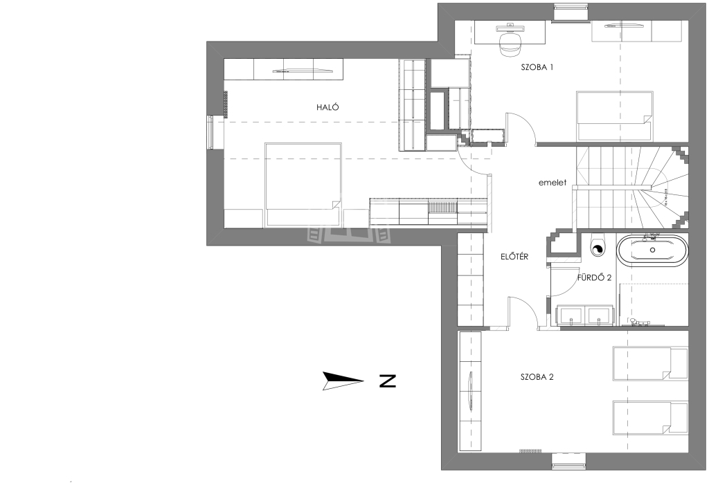
III. kerület, Békásmegyer Ófalu a Róka hegy aljában kínálom eladásra ezt a kényelmes minden igényt kielégítő luxus családi házat.

3 szintes, pincében, szauna, fürdő szoba, úszómedence, mosókonyha, 2 nagy tároló, beépített gardrób szekrények.
Földszint: Előtér, dolgozó szoba, amit ha igény van rá csak át kell rendezni és akár egy vendég szoba lehet, nappali, fa tüzelésű kandallóval, nagy konyha, étkezővel, fürdő szoba.
Emelet: 3 külön nyíló szoba, fürdő szoba, előtér, beépített gardrób.

Javaslom jöjjön nézze meg, nem fog csalódni.

Az ár irány ár!
Dankóné Cserős Éva

Dankóné Cserős Éva

Hívjon bizalommal

+36-20-366-Mutasd!

További hirdetéseim

Ingatlaniroda
GDN Ingatlanhálózat - Érdi Ingatlaniroda

Küldjön üzenetet

Visszahívást kérek

Hasonló ingatlanok