Eladó Lakás (téglaépítésű) Budapest XIII. kerület - Visegrádi utca

231 m2Alapterület 13 Szoba
259 000 000 Ft Ár
378513Azonosító
További adatok

Udvari Kilátás

Jó állapotú Állapot

Tégla Szerkezet

Gáz (cirkó) Fűtés

Összkomfort Komfort

Utcán, közterületen Parkolás

Emelet Földszint

Nincs Lift

Kiváló Tömegközlekedés

Nem Amerikai konyhás

Nincs Kertkapcsolat

1930 Építés éve

Északi Tájolás

Hitelkalkuláció – a részletekért kattintson valamelyik bank logójára!

A Göncz Árpad városközponthoz közeli részen, vállalkozásra, apartman működtetésre alkalmas apartman lakások eladók.

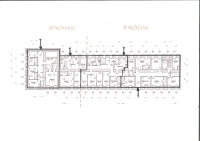
Földszinti részen 231 m2 területű, 2 db apartman lakás eladó. Ugyanitt másik albetéten, további két lakás, melynek területe 125 m2. A négy apartman összesen 20 szobát, külön/egybe fürdőszobát, WC-t, előteret/előszobát tartalmaz. Így a földszint egy tulajdonosi bejegyzésű, az eladás egy időben történne. A négy lakás eladási ára 399 millió forint.

A lakások Észak-déli fekvésűek. Belső udvari, illetve utcafronti kilátásúak. Fűtése gáz cirkó, a meleg vizet villanybojler szolgáltatja. Villanyáram szolgáltatás esetenként feltöltős órákon történik.

A lakószint irodának, vendéglátó egységnek, egyéb vállalkozói tevékenységhez kiválóan alkalmas.

A lakások jelenleg lakottak. Az eladás bérlőkkel azonnal, bérlők nélkül három hónapos határidővel történne.

Ügyfeleink részére BANKFÜGGETLEN hitelügyintéző kollégáink szívesen nyújtanak segítséget, hitellel, vagy akár CSOK-kal kapcsolatban is!

További kérdése van , hívjon bizalommal.
ZZs
Dankóné Cserős Éva

Dankóné Cserős Éva

Hívjon bizalommal

+36-20-366-Mutasd!

További hirdetéseim

Ingatlaniroda
GDN Ingatlanhálózat - Érdi Ingatlaniroda

Küldjön üzenetet

Visszahívást kérek

Hasonló ingatlanok