Eladó Családi ház Fót - Fóton eladó 6 lakásos ház

244 m2Alapterület 12 Szoba
209 000 000 Ft Ár
386120Azonosító
További adatok

440 m2 Telek

Kertre néző Kilátás

Felújított Állapot

Tégla Szerkezet

3 m2 Erkély/terasz

Gáz (cirkó) Fűtés

Összkomfort Komfort

Saját beálló Parkolás

Tömegközlekedés

Amerikai konyhás

Van Kertkapcsolat

2021 Építés éve

Délnyugati Tájolás

Hitelkalkuláció – a részletekért kattintson valamelyik bank logójára!

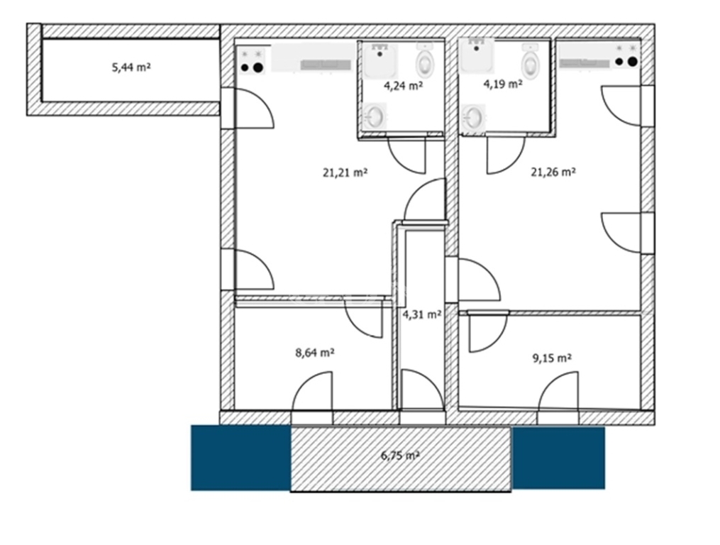
6 FELÚJÍTOTT LAKÁS!!!

Budapesttől 4 km-re, KERTVÁROSI, CSENDES környezetben, egy 440 nm-es telken, teljes közmű ellátottsággal, 6 LAKÁS eladó. Az épület 1973-ban épült és
2019-től 2022-ig teljes átépítésen, korszerűsítésen, felújításon esett át. A 6 lakás újszerű állapotban van. Amerikai konyhás + nappali, hálószobás lakások almérővel felszereltek. Az ingatlanokat jelenleg is bérlők lakják.
- szuterén lakások: 39.42 m2, 39,42 m2
- földszinti lakások: 35.32 m2, 37.57 m2
- tetőtéri lakások: 37.36 m2, 34.92 m2

A ház további jellemzői:
- 6 LAKÁSOS CSALÁDI HÁZ

- PER- és TEHERMENTES

- CSENDES KERTVÁROSI KÖRNYEZET

- födém: vasbeton

- tető: cserép

- falazat: 38-as tégla + 15 cm szigetelés

- terasz

- minden szoba világos

- zuhanyzós fürdőszobák

- puffertartály (500 liter)

- padlófűtés

- minden lakásban klíma

- műanyag nyílászárók (redőnnyel felszerelve)


Parkolás: a telken felszíni parkolók (4-5 db.)

Fűtése: cirkó gázkazán (Ariston 28 KW)

Közlekedés: jó (buszok: 308, 309, 310, 311)
Fótújfalu vasútállomásról 15 perc alatt a Nyugati pályaudvarra érkezik.

Autóval elérhető pár perc alatt az M2-es, M3-as és az M0-ás autópálya.

Közelben: AUCHAN, DECATHLON, BAUHAUS, KFC, LIDL, ALDI, bevásárlási lehetőségek, óvoda, iskola, bankok, posta, gyógyszertár stb.
Ügyfeleink részére BANKFÜGGETLEN hitelügyintéző kollegáink szívesen nyújtanak segítséget, hitellel vagy akár CSOK-kal kapcsolatban is!
A hirdetésben feltüntetett adatok és információk csak tájékoztató jellegűek, jogi kötelezettséggel nem bíró jognyilatkozatnak minősülnek, mely nem tekinthető ajánlat tételnek és nem járnak az eladóra nézve kötelező ajánlati kötöttséggel.

Amennyiben felkeltettem az érdeklődését vagy bármely további kérdése lenne, keressen bizalommal.
Akár hétvégén is!

CSA
Dankóné Cserős Éva

Dankóné Cserős Éva

Hívjon bizalommal

+36-20-366-Mutasd!

További hirdetéseim

Ingatlaniroda
GDN Ingatlanhálózat - Érdi Ingatlaniroda

Küldjön üzenetet

Visszahívást kérek

Hasonló ingatlanok