Eladó Ikerház Budapest III. kerület - Testvérhegyi út

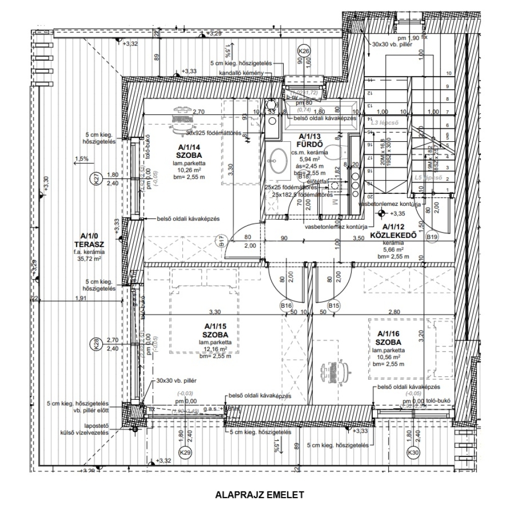
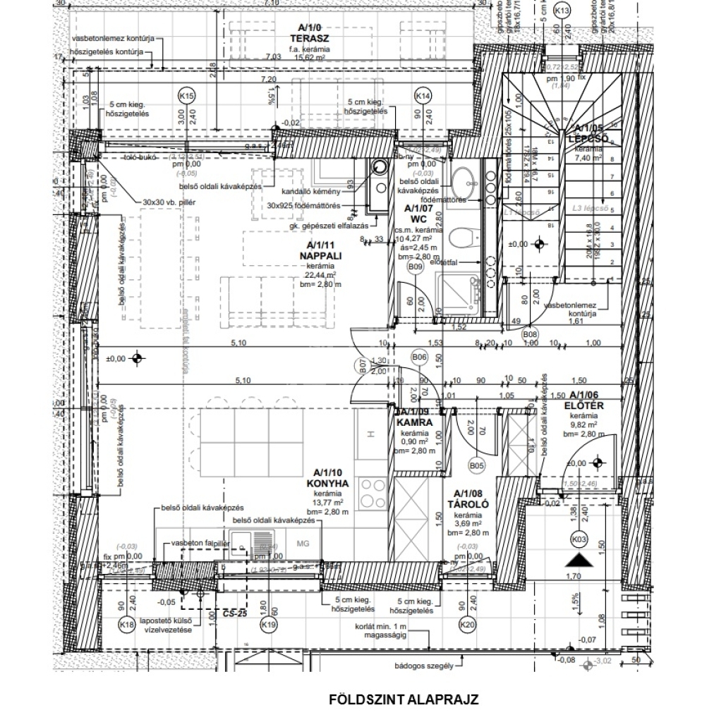
209 m2Alapterület 4 Szoba
395 000 000 Ft Ár
393783Azonosító
További adatok

400 m2 Telek

Panoráma Kilátás

Új Állapot

Tégla Szerkezet

110 m2 Erkély/terasz

Hőszivattyú Fűtés

Luxus Komfort

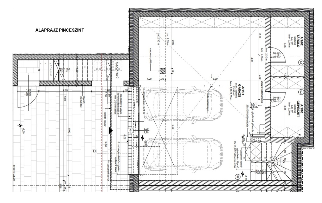
Saját garázs Parkolás

Kiváló Tömegközlekedés

Amerikai konyhás

Van Kertkapcsolat

2026 Építés éve

Délkeleti Tájolás

Hitelkalkuláció – a részletekért kattintson valamelyik bank logójára!

BUDAPEST III. KERÜLET Testvérhegyen, ÚJ ÉPÍTÉSŰ, bruttó 209 m2 alapterületű, 4 szobás, 3 szintes, duplakomfortos, PRÉMIUM minőségben kivitelezett, 360 fokban ÖRÖKPANORÁMÁS terasszal, kandallóval, dupla garázzsal rendelkező LUXUS kategóriás ikerházi lakás a hozzá tartozó 400 m2 telekkel, megbízható kivitelezőtől ELADÓ.

A TÖBB ÉVTIZEDES építési TAPASZTALATTAL rendelkező kivitelező olyan lakásokat épít, amelyek biztonságot, stabilitást nyújtanak, ezért is tartja kötelességének, hogy a LEGJOBB minőséget és a legkörültekintőbb kiszolgálást nyújtsa. MEGBÍZHATÓ, igényes kivitelezőtől LUXUS minőségű ingatlant vásárolhat.

MŰSZAKI TARTALOM:
Hőszigetelés az előírásoknak megfelelően (15 cm) grafitos, válaszfalak 10 cm-es válaszfaltégla.
Daikin hőszivattyús mennyezet hűtés-fűtés és padlófűtés.
Vízszűrő rendszer (vízkőmentesítővel).
Hővisszanyerő szellőztető rendszer.
Hofstadter 3 rétegű 6 légkamrás külső nyílászárók.
Zsaluzia, szúnyogháló beépítés.
Prémium kategóriás olasz hideg- és melegburkolat, szaniterek.
Hofstadter beltéri ajtók tokban nyíló/záródó, fürdőszobában automata küszöbbel.
Okos otthon rendszer.
Ujjlenyomattal működtetett bejárati ajtózár.
Érintő kijelzős kapcsolók.
Riasztó, kaputelefon előkészítés.
Elektromos autó töltő előkészítés.
Üvegkorlát.
Kandalló.
Kert: öntözőrendszer opcionális.

A kivitelezést modern, időtálló stílus és PRÉMIUM anyaghasználat jellemzi. Részletes műszaki tartalom a kivitelezővel történt egyeztetést követően. Alaprajz és fotók tájékoztató jellegűek.

Átadás: 2026.I. negyedév

Ajánlom azoknak, akik kényelmes, jól átgondolt terekkel rendelkező OTTHONT keresnek KITŰNŐ lokációban, ahol továbbá biztosított generációkon keresztül az ingatlan értékállósága.

Néhány perc távolságban a GoBuda Mall bevásárlóközpont, a British School és a közlekedés is KIVÁLÓ.

Hívjon bizalommal, ha az ajánlat felkeltette érdeklődését.
Dankóné Cserős Éva

Dankóné Cserős Éva

Hívjon bizalommal

+36-20-366-Mutasd!

További hirdetéseim

Ingatlaniroda
GDN Ingatlanhálózat - Érdi Ingatlaniroda

Küldjön üzenetet

Visszahívást kérek

Hasonló ingatlanok